The Buying Journey takes off

Boutique Development of New Build Homes with Private Pools in Pilar de la Horadada

From 659.000€

Pilar de La Horadada, Alicante, Spain

Boutique Development of New Build Homes with Private Pools in Pilar de la Horadada
Boutique Development of New Build Homes with Private Pools in Pilar de la Horadada
From 659.000€

Pilar de La Horadada, Alicante, Spain

Boutique Development of New Build Homes with Private Pools in Pilar de la Horadada

Overview

|
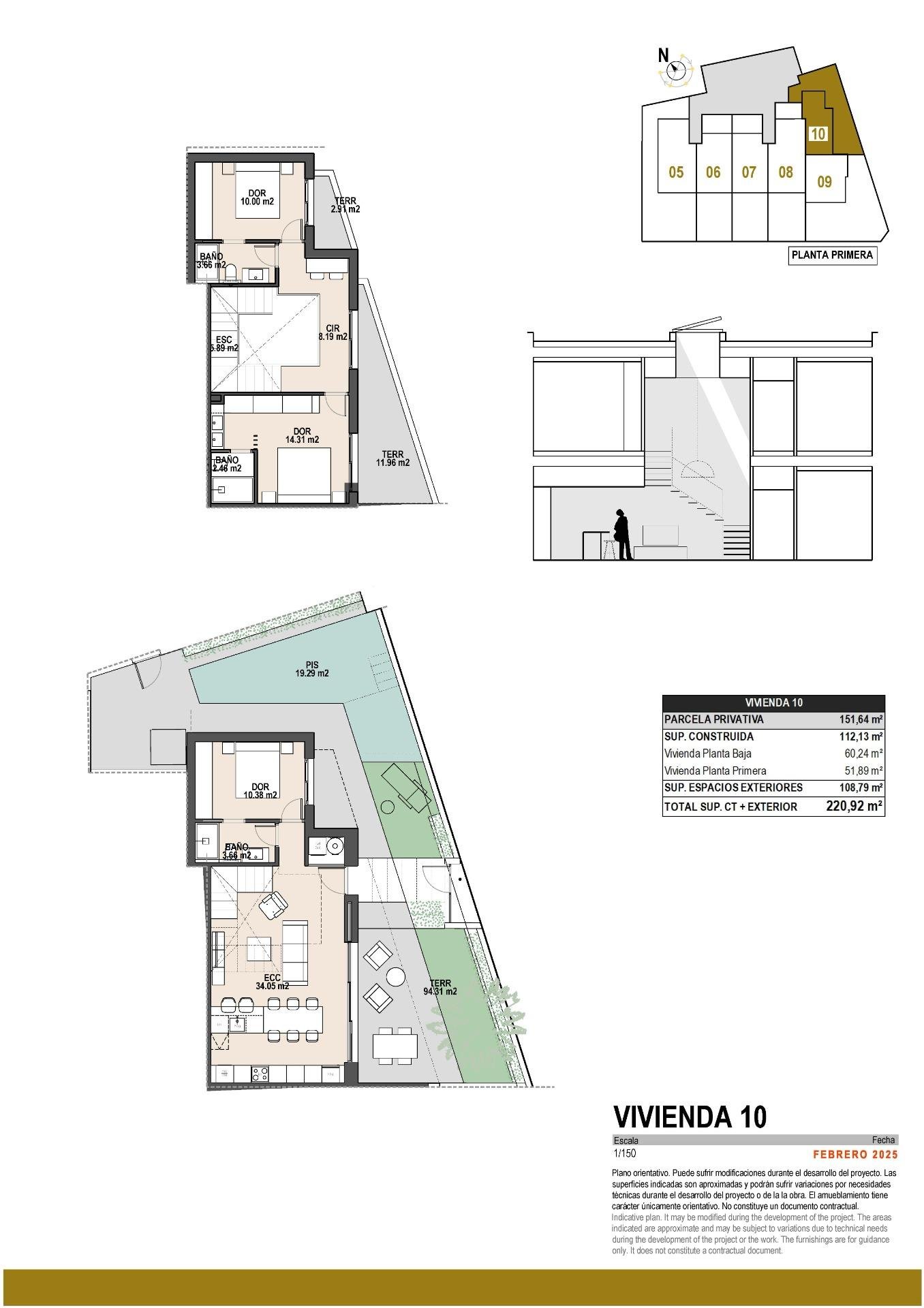
Property ID : N8955
Bedrooms
3
Bathrooms
3
Garage
1
Year Built
2025
Area
112 m2
Lot Size
94 m2
Parking
Yes
Swimming Pool
Yes
Central Cooling & Heating
Yes
Solarium
No
Sea View
No
Garden
Yes
Terrace
14 m2
Gym
No
Storage Room
No
Basement
No
Beach
Yes 1900 m

Compare Properties

Compare
You can only compare 4 properties, any new property added will replace the first one from the comparison.