The Buying Journey takes off

Exclusive New Villas for Sale in Las Farolas, Mijas Costa

From 2.275.000€

Mijas, Málaga, Spain

Exclusive New Villas for Sale in Las Farolas, Mijas Costa
Exclusive New Villas for Sale in Las Farolas, Mijas Costa
From 2.275.000€

Mijas, Málaga, Spain

Exclusive New Villas for Sale in Las Farolas, Mijas Costa

Overview

|
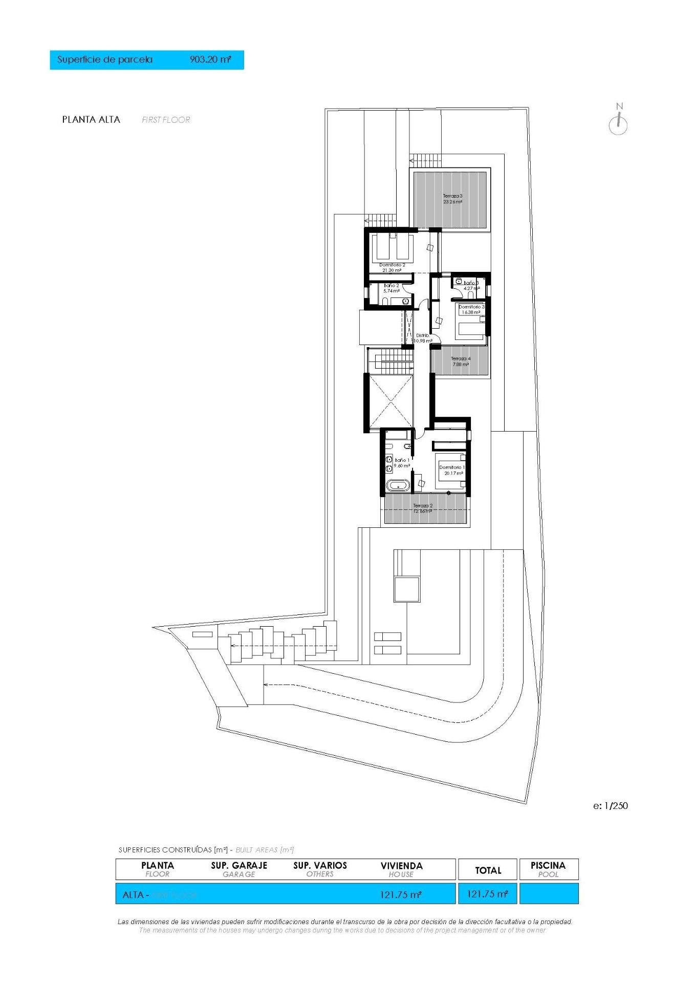
Property ID : N9260
Bedrooms
5
Bathrooms
7
Garage
2
Year Built
2025
Area
469 m2
Lot Size
903 m2
Parking
Yes
Swimming Pool
Yes
Central Cooling & Heating
No
Solarium
No
Sea View
Yes
Garden
Yes
Terrace
147 m2
Gym
Yes
Storage Room
Yes
Basement
No
Beach
Yes 100 m

Compare Properties

Compare
You can only compare 4 properties, any new property added will replace the first one from the comparison.