Casares, Málaga, Spain
NEW BUILD EXCLUSIVE LUXURY VILLA AT FINCA CORTESÍN, CASARES
This astonishing villa is the embodiment of luxury golfside living. Meticulously designed by the esteemed architects Vicens & Romans, this opulent residence showcases an unrivalled architectural marvel, unmatched in the Costa del Sol.
Nestled on a spacious frontline golf plot, the villa boasts expansive floor-to-ceiling windows that flood the interiors with an abundance of natural light, unveiling breathtaking views of the Finca Cortesin golf course and the Mediterranean sea from its elevated vantage point.
Encapsulated by lush greenery, privacy and tranquillity are guaranteed. With generous outdoor terraces and easy access to the garden from all areas, indoor/outdoor living is maximised for residents to make the most out of the stunning weather this corner of the world has to offer.
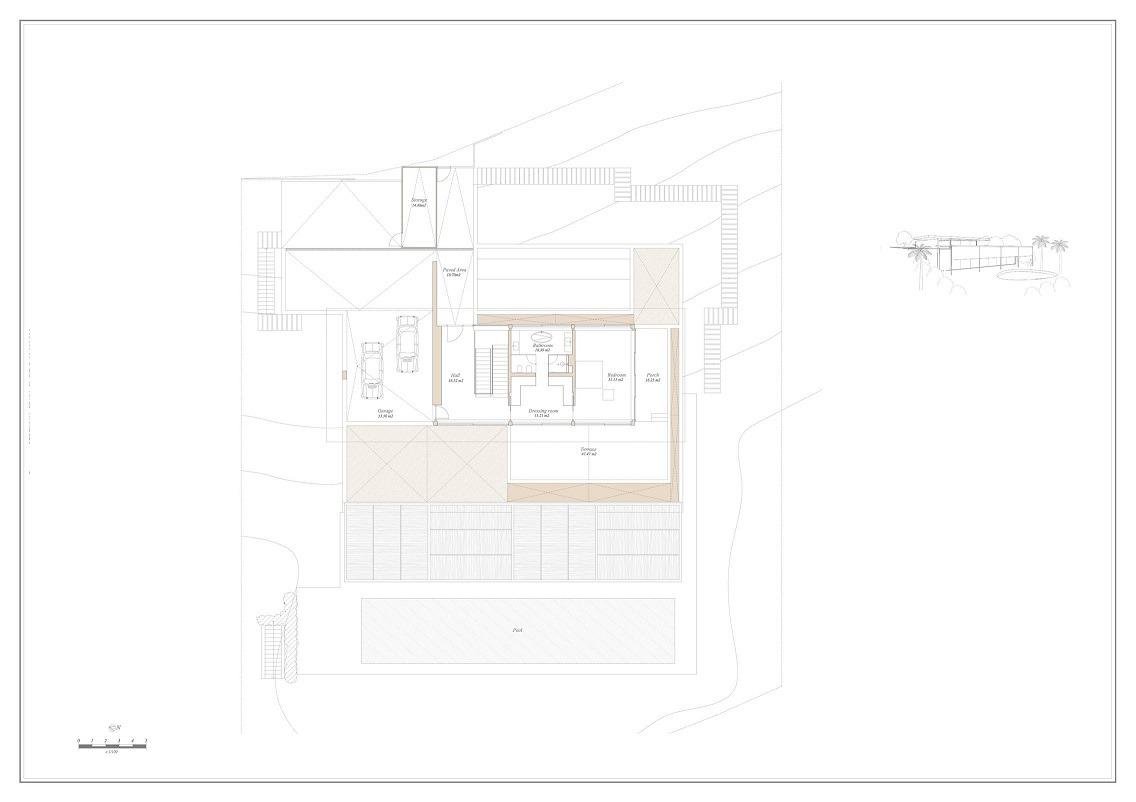
The length pool, decorated with stunning aquamarine tiles invites all to take a dip, while the luscious palm trees provide shade and an aesthetic backdrop for relaxation. The interiors exude refinement, with every detail meticulously curated using the finest materials, ensuring an unparalleled sense of luxury. The stunning kitchen, equipped with state-of-the-art Gaggenau appliances, is a culinary haven that seamlessly combines practicality with aesthetics.
Distributed across 2 floors, most bedrooms are located on the ground level of the property, with striking views across the golf course. The luxurious master bedroom is on the top level of the property, boasting a private oasis for residents to enjoy.
The property’s landscaping is a work of art, with a captivating hidden pond gracing the entrance, adorned with lush greenery that evokes a soothing ambiance, fostering a profound connection with nature. An architectural masterpiece, this property enjoys a privileged frontline golf position in one of Spain’s most exclusive resorts: Finca Cortesin.