Torrevieja, Alicante, Spain
NEW BUILD RESIDENCIAL IN LOS BALCONES, TORREVIEJA
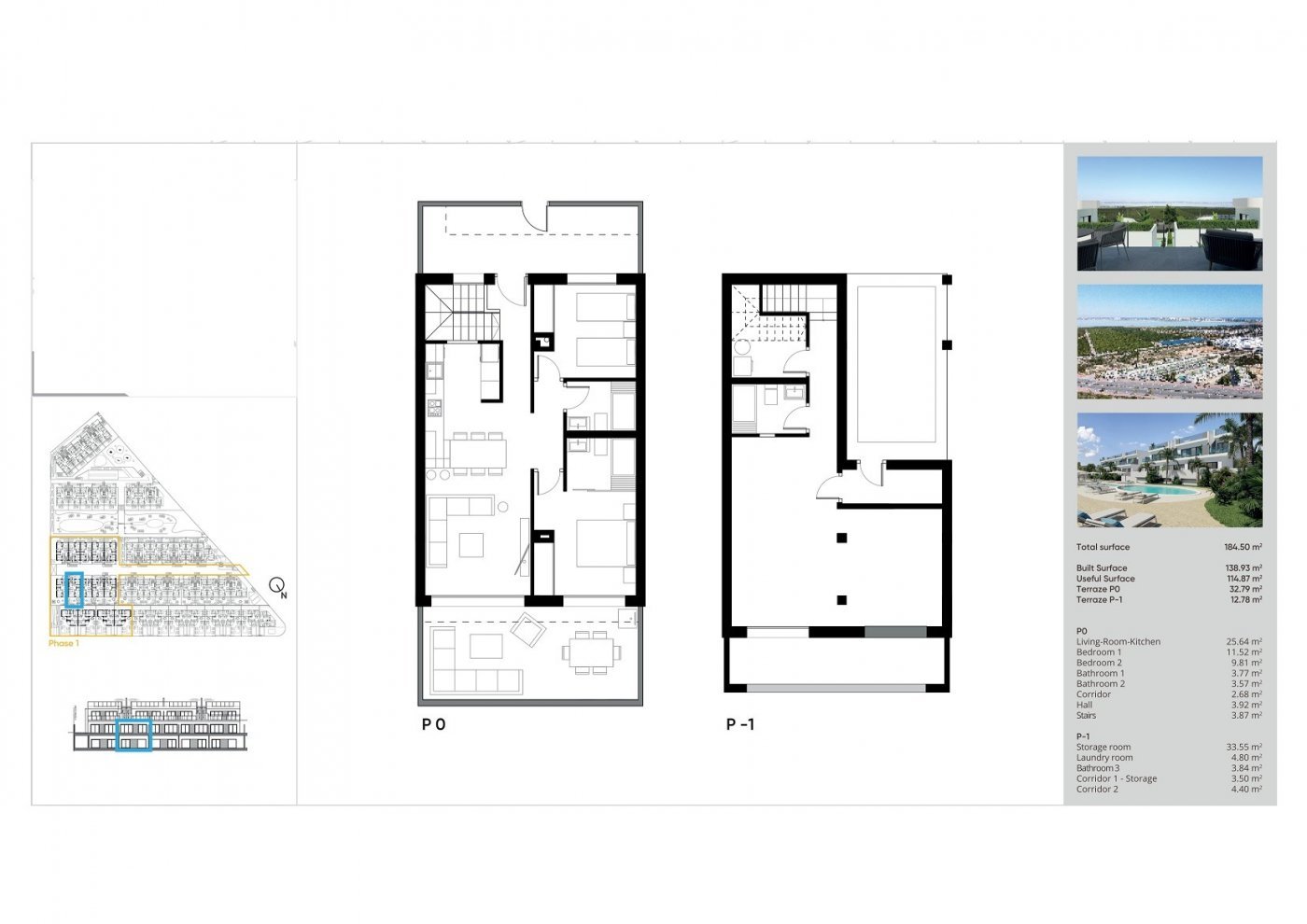
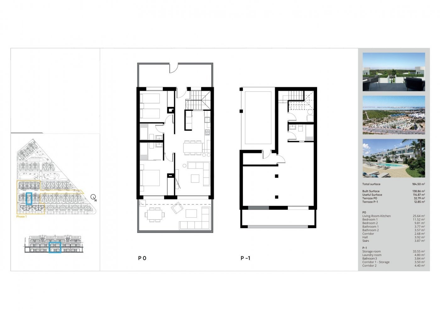
New Build residential complex of semi-detached villas and bungalows located in Los Balcones with the views to the pink lake.
New Build top floor bungalows has 2 bedrooms, 2 bathrooms, open plan kitchen with spacious living room, fitted wardrobes, terrace, private solarium and underground parking space.
New exclusive residential with big communal areas; gardens, garden-gym, playground, 2 big communal swimming pools – one of them for adults, and the other one for children.
Los Balcones is a small town located near Torrevieja south.
Torrevieja is a Spanish town in the province of Alicante, on the Costa Blanca.
It is known for its typically Mediterranean climate and coastline. It has boardwalks with resorts along its sandy beaches.
The small Museum of the Sea and Salt houses exhibitions on the fishing and salt history of the city.
In the interior, the Lagunas de La Mata-Torrevieja Natural Park has trails and two salty lagoons, one pink and the other green.
Alicante airport located 40 minutes away and Murcia airport about 1 hour away.