Casares, Málaga, Spain
NEW BUILD RESIDENTIAL COMPLEX IN CASARES
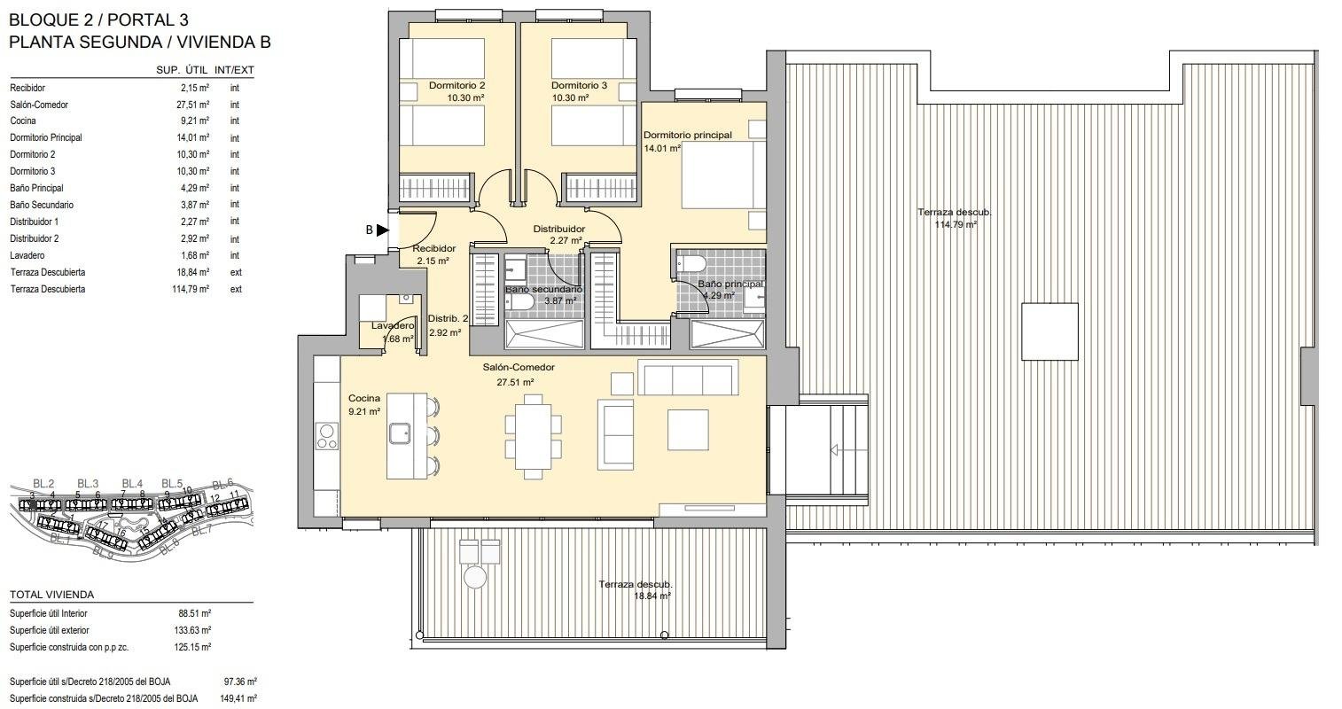
New Build residential complex of 134 apartments with 2, 3 and 4 bedroom in an oasis of nature in Casares Costa
If you dream of living in front of a golf course with magnificent open views and high quality services, then this complex is unic opportunity to acquire a fantastic home at an unbeatable price in Casares Costa.
Spacious, light-filled living and dining rooms that connect and are complemented by spacious terraces. Open-plan kitchens, fully equipped with low-consumption appliances.
Residential complex has paid special attention to designing bright, spacious and welcoming communal areas that allow you to enjoy the countless hours of sunshine and a lifestyle in direct contact with nature. To this end, this gated and security-controlled development also has an indoor gymnasium, a communal swimming pool and spacious garden areas.
Here you will find homes with a high level of quality in their finishes, with a practical and modern layout that allows maximum use to be made of their spaces, without losing out on aesthetics and style.
Living in Casares Costa offers a multitude of advantages to residents seeking a beachfront lifestyle. Not only does it enjoy proximity to the Mediterranean Sea, but also to a wide variety of attractions. From the historic charm of Casares Pueblo to the vibrant energy of Estepona’s bustling seafront promenade, residents can easily immerse themselves in the region’s rich culture and leisure opportunities.
Plus, with world-class golf courses, Finca Cortesín and Casares Golf at the development’s doorstep, pristine beaches and a varied culinary offering within easy reach. A perfect blend of tranquillity and excitement, making it a sought-after destination for those seeking a truly exceptional quality of life.
The Costa del Sol hides magical corners that are a must-see. This is the case of Casares, one of the white villages of Malaga, full of white houses, narrow and steep streets with the typical Andalusian style.
Only 16 kilometres from Estepona, Casares is a typical postcard of an Andalusian village. The picturesque layout of the houses has earned it the name of “hanging village”.
1030