Polop, Alicante, Spain
NEW BUILD SEMI-DETACHED VILLAS IN POLOP
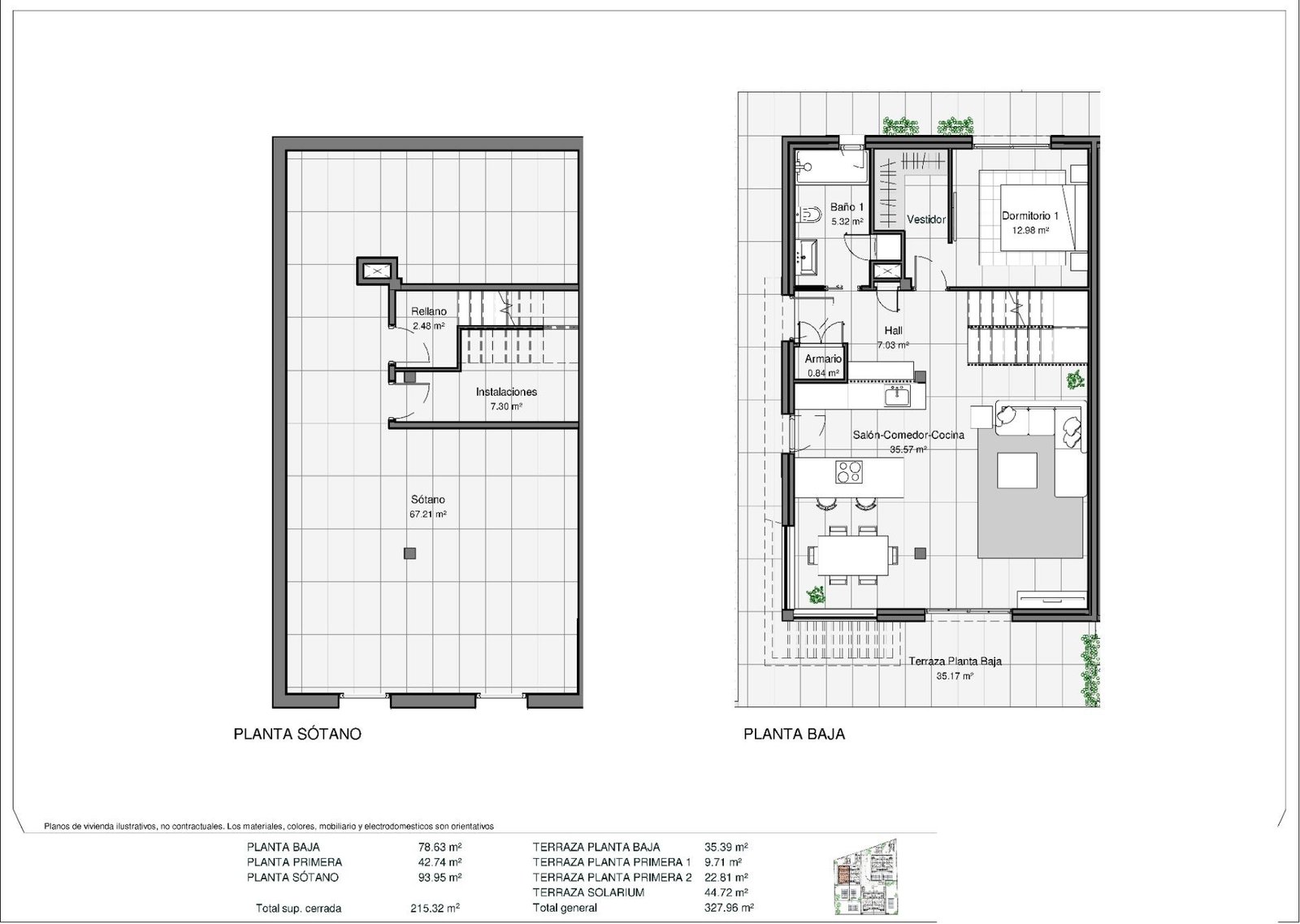
New Build modern semi-detached villas with several terraces and solarium, totally fenced, with parking area for vehicles and private swimming pool in Polop.
Modern properties with 3 spacious bedrooms with built-in wardrobes (the main one on the ground floor, with bathroom and dressing room en suite), 2 spacious bathrooms, large living-dining room with open kitchen, spacious terraces.
Kitchen equipped with base units and silestone worktops, with ceramic hob, oven, extractor hood, fridge, washing machine, dishwasher, and aerothermal heater.
First qualities: interior carpentry in wood and white lacquered laminates, exterior carpentry in anthracite grey pvc with double glazing and thermal bridge break, and automatic blinds with aluminium slats, ceramic floors of 1st quality non-slip, smooth walls, security door with 5 anchor points, large built-in wardrobes.
The city of Polop offers an amazing range of options for lovers of the great outdoors surrounded by nature and unparalleled peace.
The municipality enjoys a Mediterranean climate with cooler temperatures and cleaner air, located less than 10 kilometres from Benidorm, Altea and their beaches.
It stretches from the rivers Guadalest and Algar to the town of Villajoyosa, including the beaches of Albir and Benidorm; inland it borders Callosa and Guadalest.