The Buying Journey takes off

NEW BUILD VILLA IN ROJALES

From 799.900€

Rojales, Alicante, Spain

NEW BUILD VILLA IN ROJALES
NEW BUILD VILLA IN ROJALES
From 799.900€

Rojales, Alicante, Spain

NEW BUILD VILLA IN ROJALES

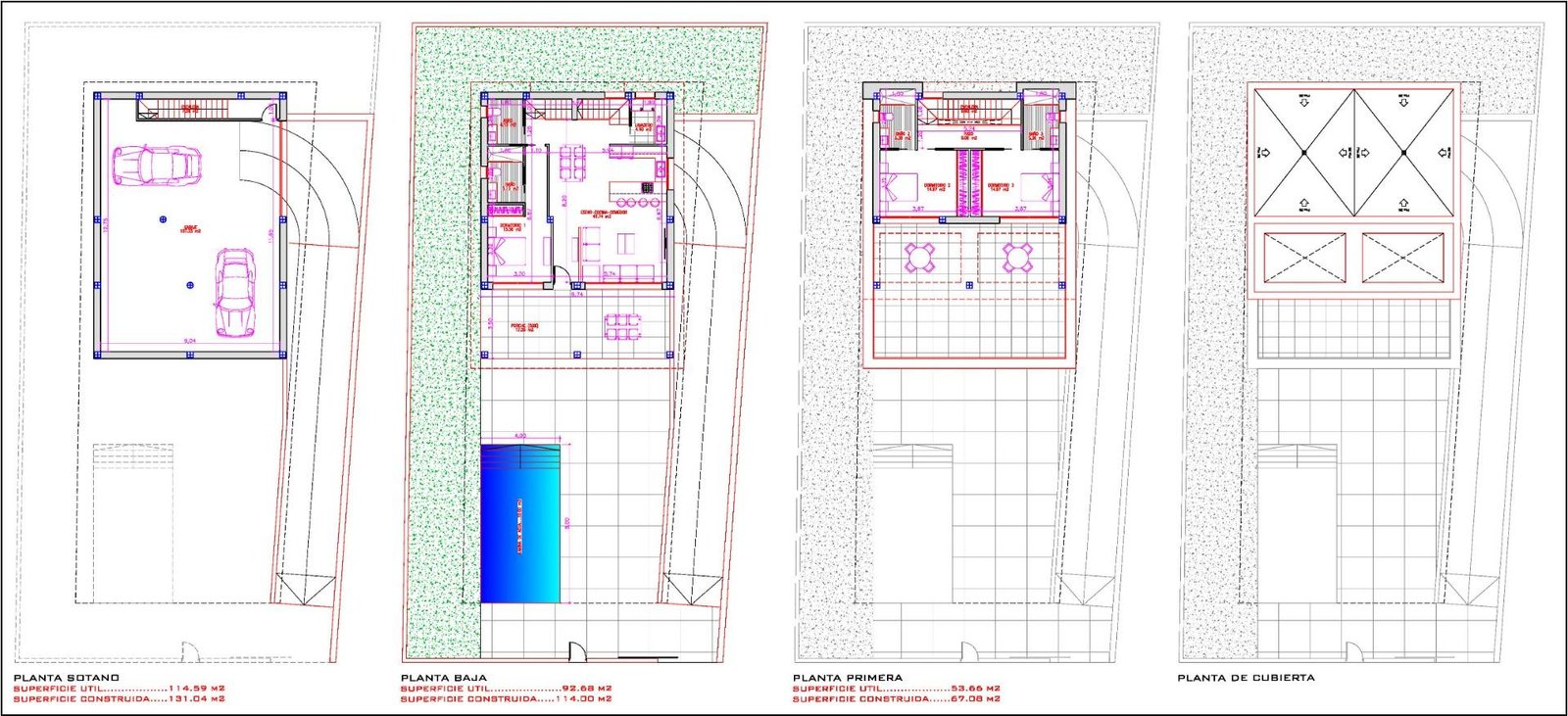
Overview

|
Property ID : N9125
Bedrooms
3
Bathrooms
4
Garage
2
Year Built
2024
Area
282 m2
Lot Size
550 m2
Parking
Yes
Swimming Pool
Yes
Central Cooling & Heating
No
Solarium
No
Sea View
No
Garden
Yes
Terrace
50 m2
Gym
No
Storage Room
Yes
Basement
No
Beach
Yes 7000 m

Compare Properties

Compare
You can only compare 4 properties, any new property added will replace the first one from the comparison.