Manilva, Málaga, Spain
NEW BUILD RESIDENTIAL IN LAS ROCAS EN MANILVA
New build residential of 16 townhouses and semi-detached villas located in Las Rocas en Manilva, on the Costa del Sol.
At residential you will enjoy the best and most spectacular sea views, stretching to Gibraltar and the Moroccan coastline with the best orientation. The ideal setting to enjoy the authentic Mediterranean lifestyle.
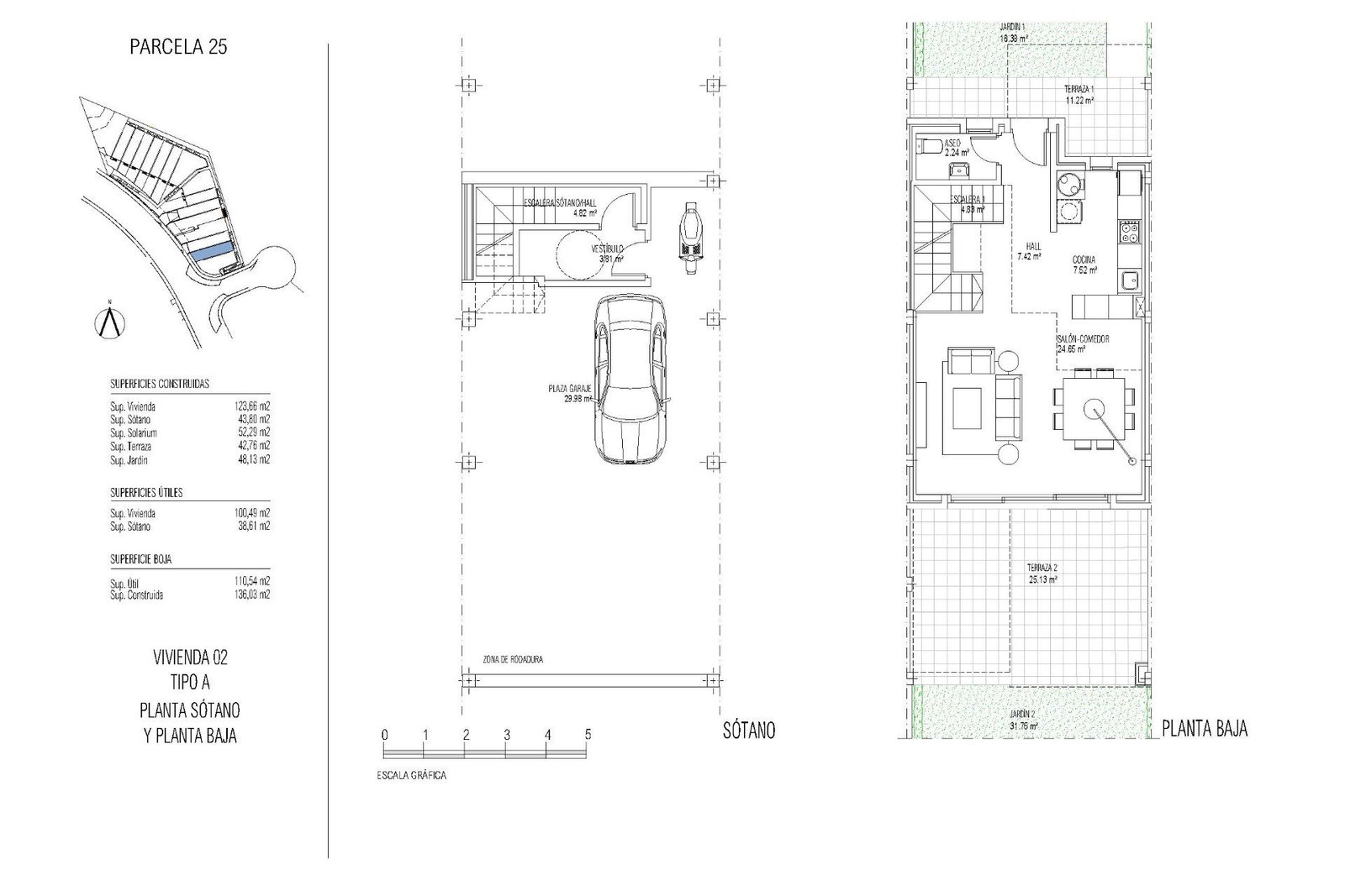
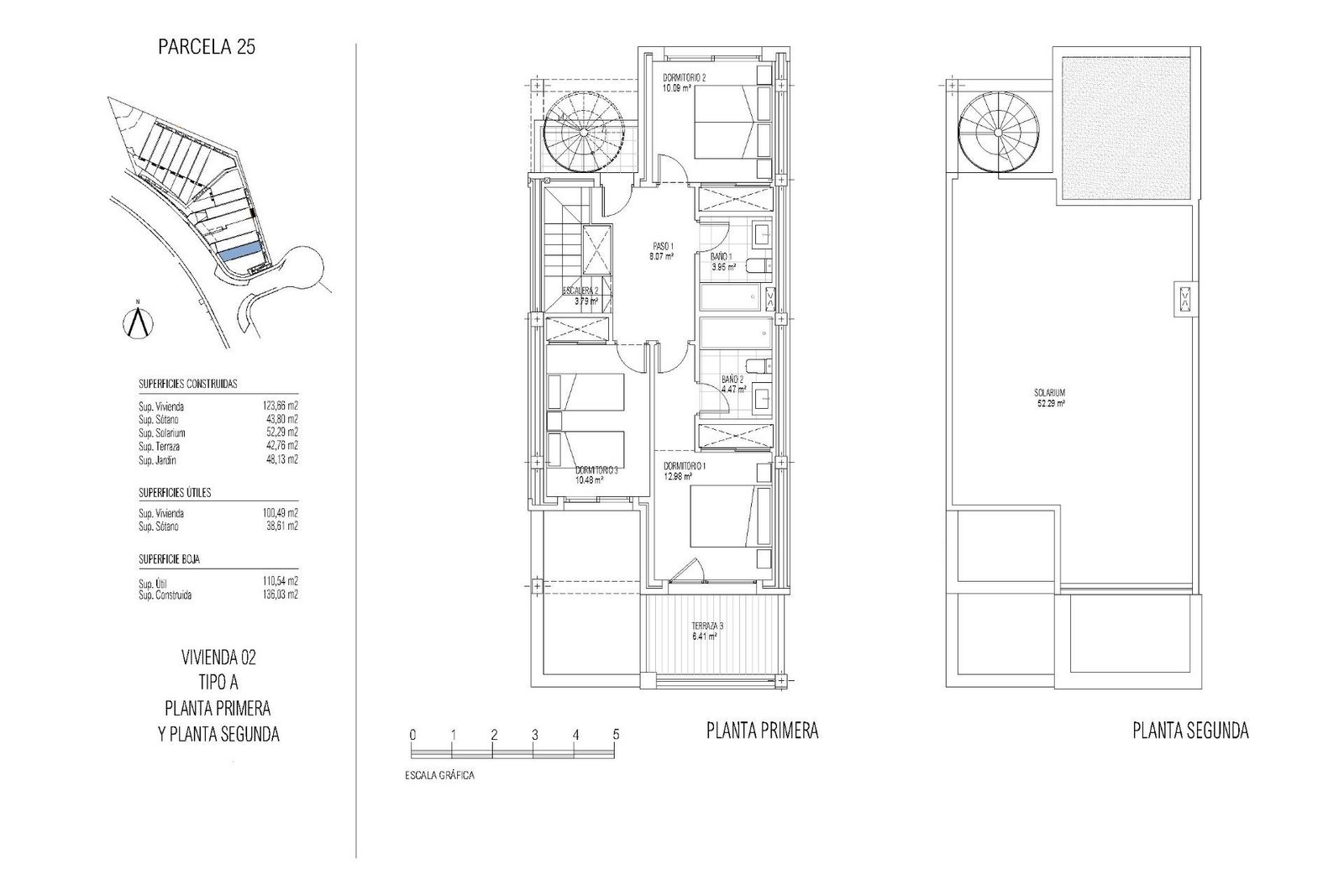
Modern properties with 3 bedrooms, 2 bathrooms, open plan kitchen with spacious living room, fitted wardrobes, terraces, solarium, private garden and basement with garage.
Residential complex fully enclosed and fenced. The common areas are provided with LED lighting for maximum energy efficiency and Access ramps.
Private parking space for two cars.
You can enjoy common areas: the large swimming pool will incorporate modern latest generation technology. There will also be a paddle tennis court, children’s area.
Residential situated in the perfect location between Marbella and Sotogrande, at the heart of the Costa del Sol and very close to the beach. Easily accessed with excellent road communications which connect directly with N340 at km150. Located just 1 hour from Malaga International airport and 25 minutes from Gibraltar airport.
Surrounded by green areas and the best golf courses in Europe. Only 5 minutes away is La Reserva Club in Sotogrande, a great leisure area which includes Golf, Horse riding and resort with restaurant facilities, a white sandy beach and lagoon for sports activities.